Если цена в объявлении изменится, мы сразу сообщим вам об этом на электронную почту.
Нажимая «Подписаться», вы соглашаетесь с правилами.
продам дом, Волжский Берег кп35 890 000 ₽
2 мая 2024
Дата публикации объявления
Обн. 18 мая
Дата обновления объявления
2
Количество просмотров (+ просмотры за сегодня)
180 352 ₽/м²
Чистая продажа
Термин "Чистая продажа" означает, что в квартире никто не прописан или
есть куда выписаться и вывезти вещи. Это лучший вариант для покупателя.
Вероятность срыва сделки минимальна.
Этажей2
Площадь участка7,56 соток
Общая площадь199 м2
ЭлектричествоЕсть
Газоснабжениецентральное
Современный архитектурный дом напрямую от застройщика в поселке с собственным яхт-клубом — премиальный формат загородной жизни всего в часе от Москвы.
В коттеджном поселке Волжский Берег продается стильный двухэтажный дом площадью 199 кв.м на участке 7,56 соток. Проект разработан архитектурным бюро ZROBIM architects и отличается современной архитектурой и дизайнерской отделкой фасада с использованием натурального планкена. Дом создан для тех, кто ценит эстетику, комфорт и жизнь рядом с водой и природой. До Москвы — около часа по трассе М-11.
О доме
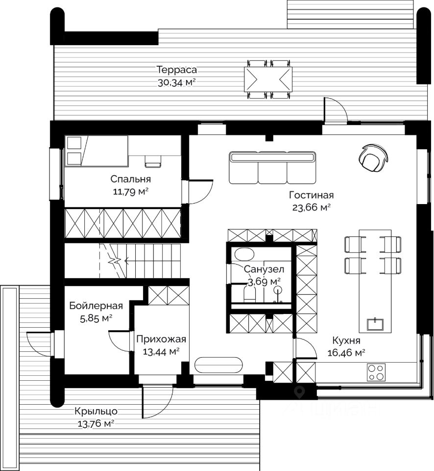
Планировка продумана для комфортной жизни семьи. В доме предусмотрены 4 спальни, 3 санузла, просторная кухня-гостиная с выходом на открытую террасу и балкон.
Современный архитектурный дом напрямую от застройщика в поселке с собственным яхт-клубом — премиальный формат загородной жизни всего в часе от Москвы.
В коттеджном поселке Волжский Берег продается стильный двухэтажный дом площадью 199 кв.м на участке 7,56 соток. Проект разработан архитектурным бюро ZROBIM architects и отличается современной архитектурой и дизайнерской отделкой фасада с использованием натурального планкена. Дом создан для тех, кто ценит эстетику, комфорт и жизнь рядом с водой и природой. До Москвы — около часа по трассе М-11.
О доме
Планировка продумана для комфортной жизни семьи. В доме предусмотрены 4 спальни, 3 санузла, просторная кухня-гостиная с выходом на открытую террасу и балкон. Пространство удобно разделено на приватные и общие зоны для отдыха и повседневной жизни.
Фасад выполнен с дизайнерской отделкой из натурального планкена, который придает архитектуре выразительность и уют. Дом подойдет как для постоянного проживания, так и для загородного отдыха в любое время года.
Внутри дом передается в черновой отделке, что позволяет полностью адаптировать интерьер под собственный стиль жизни — от выбора материалов до индивидуальных решений по мебели и освещению.
В поселке подключены все необходимые коммуникации, включая магистральный газ. Дом продается напрямую от застройщика. Доступны различные варианты покупки, в том числе семейная и IT-ипотека. Также покупателей сопровождает собственный ипотечный менеджер.
О поселке
Волжский Берег — курортный поселок на первой линии Волги с инфраструктурой для комфортной жизни и отдыха. Одно из главных преимуществ — собственный яхт-клуб.
Для жителей предусмотрены: — пляжная зона с лежаками, — прогулочная набережная, — площадка для пляжного волейбола, — беседки и зоны отдыха, — детская площадка.
В поселке оборудованы асфальтированные и освещенные дороги, тротуары из брусчатки и полностью асфальтированные подъездные пути, что обеспечивает комфортное проживание круглый год.
Территория закрыта и находится под круглосуточной охраной: въезд осуществляется через КПП, ведется видеонаблюдение 24/7.
О локации
Поселок расположен рядом с курортом Завидово — одним из самых популярных направлений для загородного отдыха и жизни. Всего в 4 км по воде находятся крупнейший крытый аквапарк Европы, SPA-комплексы, рестораны, яхт-клубы, гольф-инфраструктура и развлечения для всей семьи.
Свяжитесь с нами сегодня, чтобы получить подробную информацию о доме, узнать актуальные условия покупки и записаться на просмотр. Современные дома напрямую от застройщика в таких локациях — редкое предложение на рынке загородной недвижимости.