Если цена в объявлении изменится, мы сразу сообщим вам об этом на электронную почту.
Нажимая «Подписаться», вы соглашаетесь с правилами.
продам готовый бизнес, Гайдара, 420 826 500 ₽
9 апр 2025
Дата публикации объявления
Обн. 4 апр
Дата обновления объявления
13
Количество просмотров (+ просмотры за сегодня)
115 000 ₽/м²
Параметры
Общая площадь181,1 м2
Этаж1
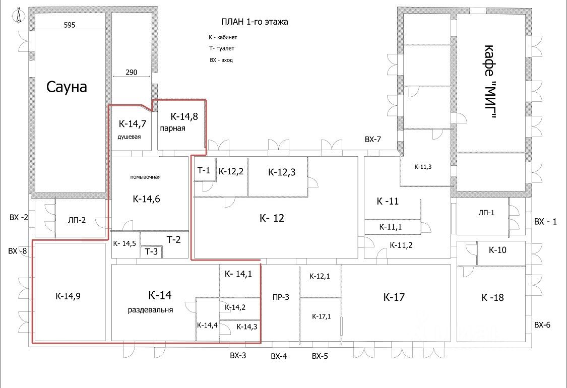
Продажа русской общественной бани Твоя банька Тверь ул. Гайдара д 4 Рейтинг в Яндекс 4,9 Возраст бизнеса 9 лет Общая площадь помещений 181,1 кв. м : раздевалка 40,4 кв. м на 28 посадочных мест, отдельный кабинет на 8 человек, оборудованные мебелью, телевизорами, массажным креслом, интернет, камеры видеонаблюдения. Парная 17,3 кв. м с печкой на брикетах (дровах) на 64 куб. м, отделка из кедра (капитальный ремонт август 2024 г. Помывочная 31,7 кв. м, душевая с тремя душевыми кабинами. Имеются все необходимые подсобные помещения и оборудование для функциональной работы, электрическая мощность 10 кВт. Огороженный двор площадью 280 кв.м, с круглогодичным каркасным бассейном на 30 куб.м с подогревом с техническим помещением для его обслуживания.
Продажа русской общественной бани Твоя банька Тверь ул. Гайдара д 4 Рейтинг в Яндекс 4,9 Возраст бизнеса 9 лет Общая площадь помещений 181,1 кв. м : раздевалка 40,4 кв. м на 28 посадочных мест, отдельный кабинет на 8 человек, оборудованные мебелью, телевизорами, массажным креслом, интернет, камеры видеонаблюдения. Парная 17,3 кв. м с печкой на брикетах (дровах) на 64 куб. м, отделка из кедра (капитальный ремонт август 2024 г. Помывочная 31,7 кв. м, душевая с тремя душевыми кабинами. Имеются все необходимые подсобные помещения и оборудование для функциональной работы, электрическая мощность 10 кВт. Огороженный двор площадью 280 кв.м, с круглогодичным каркасным бассейном на 30 куб.м с подогревом с техническим помещением для его обслуживания. Имеются лежаки, столы и стулья, мангал. Крыльцо с местом для курения. Коммуникации центральные, установлены счетчики (на случай отключения имеется оборудование для автономной работы). Система видеонаблюдения, пожарная сигнализация, интернет, освещение двора. Земля в долгосрочной аренде. Стоянка для автомобилей. Возможность увеличения площади бани за счет соседних помещений и пристроек по периметру здания. Продает собственник Выручка 450000 рублей. Расходы 200000 рублей. Прибыль 250000рублей. Окупаемость 83 месяца. Сотрудники 2 человека. ФОТ сотрудников 100000 рублей. Стоимость: 181,1 кв.м х 115 000 руб. за м кв. = 20 826 500 рублей