Если цена в объявлении изменится, мы сразу сообщим вам об этом на электронную почту.
Нажимая «Подписаться», вы соглашаетесь с правилами.
продам дом, д. Напрудное11 210 000 ₽
12 дек
Дата публикации объявления
Обн. вчера
Дата обновления объявления
2
Количество просмотров (+ просмотры за сегодня)
89 680 ₽/м²
Чистая продажа
Термин "Чистая продажа" означает, что в квартире никто не прописан или
есть куда выписаться и вывезти вещи. Это лучший вариант для покупателя.
Вероятность срыва сделки минимальна.
Этажей1
Площадь участка11 соток
Общая площадь125 м2
ЭлектричествоЕсть
Газоснабжениецентральное
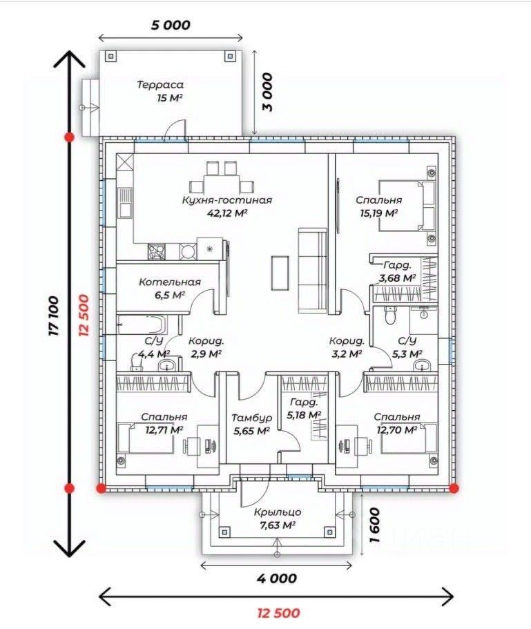
Продается ГОТОВЫЙ дом по проекту ''Уютный'' в локации Напрудное. В стоимость входит участок, газ, свет, скважина и септик. Дом достроен. Возможен ремонт под ключ, от 22 т.р. за м².
Подходит под семейную ипотеку!
Одноэтажный коттедж общей площадь 125 м² 2025 года постройки на участке 11 соток (ИЖС).
ПЛАНИРОВКА: Спальня 1 15,6 м² + гардеробная 3,6 м², Спальня 2 12,6 м², Спальня 3 12,6 м² С/У с душевой 5,4 м², С/У с ванной 4,3 м², Котельная 5,9 м², Кухня-столовая 14,4 м², Гостиная 20,1 м², Прихожая 5,6 м² + гардеробная 5,3 м² Так же к фасаду дома примыкает застекленный тамбур 7,6 м², на тыльной стороне расположена закрытая терраса 15 м².
Продается ГОТОВЫЙ дом по проекту ''Уютный'' в локации Напрудное. В стоимость входит участок, газ, свет, скважина и септик. Дом достроен. Возможен ремонт под ключ, от 22 т.р. за м².
Подходит под семейную ипотеку!
Одноэтажный коттедж общей площадь 125 м² 2025 года постройки на участке 11 соток (ИЖС).
ПЛАНИРОВКА: Спальня 1 15,6 м² + гардеробная 3,6 м², Спальня 2 12,6 м², Спальня 3 12,6 м² С/У с душевой 5,4 м², С/У с ванной 4,3 м², Котельная 5,9 м², Кухня-столовая 14,4 м², Гостиная 20,1 м², Прихожая 5,6 м² + гардеробная 5,3 м² Так же к фасаду дома примыкает застекленный тамбур 7,6 м², на тыльной стороне расположена закрытая терраса 15 м².
Особенности дома:
Фундамент монолитная железобетонная плита толщиной в 300 мм, стены трехслойная стена (керамический кирпич, утеплитель ''Технониколь'' 100 мм, несущие стены 380 мм и перегородки из силикатного кирпича. Кровля мягкая черепица. Дополнительно с нашей компанией можно выполнить любой этап ремонта и благоустройства территории.
УЧАСТОК Участок ровный прямоугольной формы. Расположение дома на участке позволяет организовать комфортные парковочные места внутри своей территории, а не за ее пределами. Задняя часть участка свободно позволяет разместить баню, мангальную зону, детскую площадку.
КОММУНИКАЦИИ Газ вводится в дом, после постановки на кадастровый учет по доверенности оформляются документы на собственника. Водопровод скважина введена в дом Канализация септик (биостанция Волгарь) Электричество 15 Квт., 3 фазы.
ПРЕИМУЩЕСТВА и ИНФРАСТРУКТУРА 2 км от границы Твери, 7 минут от Глобуса. Из Брусилова или Кривцово утром добираться дольше. 400 метров до соснового леса. Вся необходимая инфраструктура находится в 10 минутной досягаемости. Транспорт - Автобусы: 115, 135, 136, 137, 177, 222. Транспортная доступность, дороги в отличном состоянии.
Жилой комплекс ''НАПРУДНОЕ'' расположен в 3 км южнее границы города Твери по Волоколамскому шоссе, в деревне Напрудное. Земельный массив площадью 60 гектар находится на возвышенности, в окружении красивого ЛЕСА и уникальных природных ПРУДОВ, в одном из самых экологически чистых уголков Калининского района. Так же есть готовые дома в локациях, Поддубье, Черногубово, Неготино, Старково, Долматово.