Если цена в объявлении изменится, мы сразу сообщим вам об этом на электронную почту.
Нажимая «Подписаться», вы соглашаетесь с правилами.
продам дом, Крамского, 49 150 000 ₽
21 янв
Дата публикации объявления
Обн. 29 апр
Дата обновления объявления
70 385 ₽/м²
Чистая продажа
Термин "Чистая продажа" означает, что в квартире никто не прописан или
есть куда выписаться и вывезти вещи. Это лучший вариант для покупателя.
Вероятность срыва сделки минимальна.
Этажей1
Площадь участка8 соток
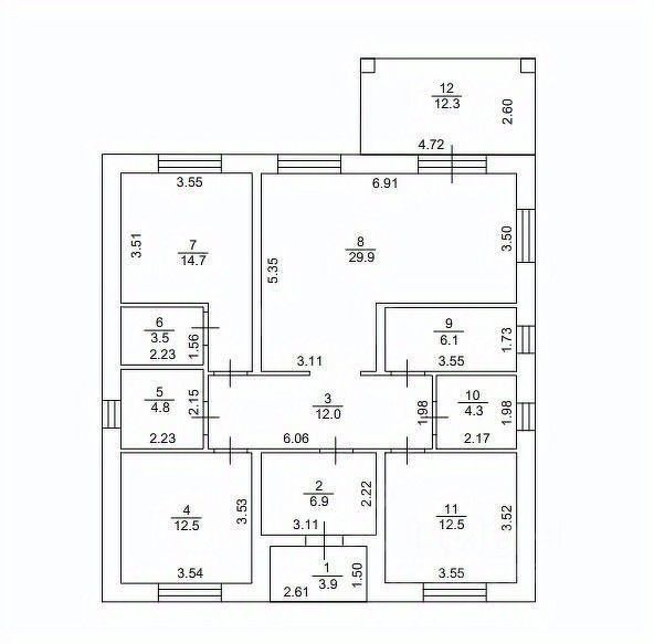
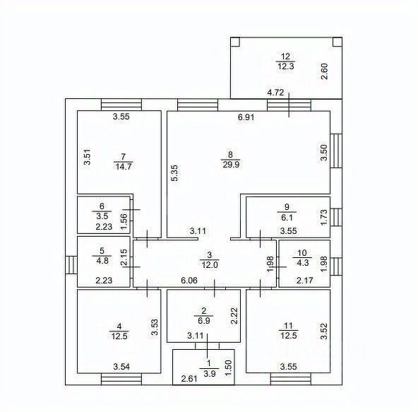
Общая площадь130 м2
ЭлектричествоЕсть
Газоснабжениецентральное
Продается современный дом общей площадью 130 м², полностью готовый к финишной отделке. Объект отличается капитальностью и продуманной планировкой: три изолированные спальни, два санузла, просторная кухня-гостиная и отдельная котельная. Материалы стен — газоблок с облицовочным кирпичом — обеспечивают высокую энергоэффективность, а фундамент в виде монолитной плиты 300 мм гарантирует долговечность конструкции. Коммуникации подведены, включая газ, что значительно сокращает ваши затраты и время на подготовку к проживанию. Дополнительными преимуществами являются крыльцо и терраса для отдыха. Участок площадью 8 соток выровнен и имеет ограждение по трем сторонам, что создает ощущение уединенности и готово для ландшафтного благоустройства.
Продается современный дом общей площадью 130 м², полностью готовый к финишной отделке. Объект отличается капитальностью и продуманной планировкой: три изолированные спальни, два санузла, просторная кухня-гостиная и отдельная котельная. Материалы стен — газоблок с облицовочным кирпичом — обеспечивают высокую энергоэффективность, а фундамент в виде монолитной плиты 300 мм гарантирует долговечность конструкции. Коммуникации подведены, включая газ, что значительно сокращает ваши затраты и время на подготовку к проживанию. Дополнительными преимуществами являются крыльцо и терраса для отдыха. Участок площадью 8 соток выровнен и имеет ограждение по трем сторонам, что создает ощущение уединенности и готово для ландшафтного благоустройства. Отличная транспортная доступность позволяет добраться до Твери на автомобиле всего за 10 минут, сочетая преимущества загородной жизни с близостью к городской инфраструктуре. Объект соответствует критериям для оформления льготной ипотеки, что делает его приобретение выгодной инвестицией.