Дом, Спортивная Показать на карте
д. Игнатово (Калининский район)
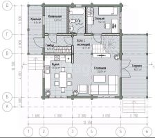
Продается просторный одноэтажный дом в закрытом поселке Новый свет, сочетающий современные строительные технологии с продуманной планировкой и удобным расположением. Дом построен из газосиликатных блоков толщиной 400 мм с вентилируемым зазором и облицовкой кирпичом в баварской кладке, что обеспечивает высокую теплоизоляцию и долговечность. Фундамент выполнен по технологии перевернутая чаша, гарантирующей устойчивость конструкции, а крыша покрыта мягкой черепицей с утеплением чердака 200 мм и удобным доступом для обслуживания. Окна с трехкамерными стеклопакетами и энергосберегающим покрытием дополнены легкой тонировкой для комфортного естественного освещения. Все коммуникации централизованные: водоснабжение, канализация, газ и электричество 15 кВт заведены в дом, предусмотрены закладные под домофон. Участок площадью 12 соток отличается ровным рельефом, отсутствием подтоплений и удобным подъездом с местами для парковки. Планировка включает просторную кухню-гостиную 45 м, три изолированные спальни около 20 м каждая, два санузла и техническое помещение под котельную. Терраса площадью 20 м расширяет жилое пространство и идеально подходит для отдыха на свежем воздухе. Поселок расположен в 15 минутах езды от города, территория охраняется, оборудована видеонаблюдением и доступна только через шлагбаум. Инфраструктура поселка включает все необходимое для комфортной жизни. Дом полностью готов к сделке: оформлен в собственность, без обременений и прописанных лиц, что позволяет провести покупку быстро и без осложнений. Это надежное решение для тех, кто ценит качество, безопасность и удобствоАрт. 117534364
130 м2
1 этаж
Кирпич
- Показать контакты
- Добавить в избранное
130 м2
1 этаж
Кирпич
9 990 000
76 846 /м2
