Дом, Зеленый Бор, 4б Показать на карте
Конаково
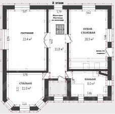
Продам уютный двухэтажный дом 200 кв.м с видом на пруд и лес, на участке 10 соток, в престижном районе Конаково-Зеленый бор, недалеко от реки Волги. Дом просторный и теплый. На первом этаже: кухня-гостиная с камином — центр семейной жизни, большой холл, подлестничная кладовка,коридор-гардероб, основная кладовая,раздельный санузел, котельная с отдельной кладовой и деревянными стеллажами (высота — 34 метра).На втором этаже: Две просторные спальни с двухспальными кроватями, шкафами и комодами — идеальное место для отдыха.Уютный кабинет с раскладным диваном и креслами — подойдёт для работы или чтения.Просторная гостиная/кинозал с большим раскладным диваном. Отдельный санузел и ванная комната.В доме есть чердак- Полноценное помещение без ремонта (около 60 м² полезной площади).Возможность обустроить по своему вкусу — дополнительная жилая зона или складское пространство.Дом идеально подходит для жизни и отдыха круглый год, сочетает в себе комфорт современного жилья и близость к природе,продуманная планировка для семьи,развитая инфраструктура (круглогодичный подъезд),дополнительные преимущества — двухэтажные баня и гараж.В бане на первом этаже парилка и купель, на втором этаже комната для отдыха.В гараже на первом этаже место для автомобиля, на втором этаже помещение под мастерскую или гостевую комнату, свободное помещение для воплощения ваших идей. Участок — ваш личный уголок природы:Собственный выход в лес — наслаждайтесь тишиной и свежим воздухом.Пожарный пруд с облепихой у парадного входа — живописный акцент на участке.Круглый каркасный бассейн (диаметр 45 м)Большой батут — радость для детей и взрослых.Шикарные ели, создающие атмосферу уюта и уединения.От Москвы на машине по Ленинградскому ш. (платная дорога М11 - 50 минут от МКАДа) и на скоростной электричке Ласточке от Ленинградского вокзала до Конаково или Завидово.Прекрасное предложение для жизни и отдыха!Дом ждёт новых хозяев, готовых оценить комфорт и удобства!Свободная продажа — быстрый выход на сделку!Полное юридическое сопровождение сделки — Ваша безопасность гарантирована!.Безопасные расчёты — все этапы сделки под контролем!Показ в любое удобное для Вас время —звоните, и мы договоримся о встрече!Не упустите свой шанс!
200 м2
2 этажа
Дерево
- Показать контакты
- Добавить в избранное
200 м2
2 этажа
Дерево
28 000 000
140 000 /м2
