Коттедж, Интернациональная 1-я, 27 Показать на карте
Пролетарский район
Тверь
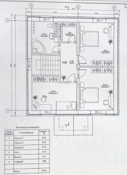
г. Тверь, ул. 1-я Интернациональная, 27В продаже роскошный и стильный дом с дизайнерским ремонтом. Идеальное место для жизни!!!Трехэтажный кирпичный дом общей площадью 262,4 кв. м. 2016 года постройки на участке 5 соток. Очень удобная и функциональная планировка:- 1 этаж: комната площадью 14,5 кв. м., холл 16,5 кв. м., котельная (прачечная) с санузлом 6,8 кв. м., отапливаемый гараж 35,6 кв. м., прихожая,- 2 этаж: просторная гостиная с камином 25,9 кв. м., большая кухня 21,4 кв. м., кабинет 13,6 кв. м., санузел 6,7 кв. м., холл 10,3 кв. м.,- 3 этаж: спальня 21,2 кв. м. с выходом в гардеробную 4,3 кв. м., спальня 21,1 кв. м., детская комната 15,4 кв. м., санузел 5,7 кв. м., холл 11,9 кв. м.Фундамент - монолитная ж/б плита, межэтажные перекрытия железобетонные, крыша металлочерепица.Внутренняя дизайнерская отделка дома выполнена из качественных дорогостоящих материалов исключительно для себя, в связи с чем вложена душа и денежные средства без экономии. Отдельного внимания достоин авторский камин в гостиной (на дровах), натуральная дубовая лестница, ручная роспись, а также многоуровневые натяжные потолки, выполненные под заказ.Установлена многофильтровая система очистки воды!Участок: ИЖС ровный, правильной формы площадью 5 соток. Огорожен забором. При въезде установлены автоматические ворота. Участок разработан по ландшафтному дизайн-проекту, засажен декоративным газоном. На участке расположена теплица, выделена зона под крытую беседку, имеется зона барбекю.Коммуникации: отопление и горячая вода от двухконтурного газового котла, водопровод - скважина, канализация - переливной септик, электричество.Удачное месторасположение дома, прекрасная транспортная доступность в любую точку города. Вся инфраструктура в шаговой доступности: школа N9, детский сад N9, торговый центр Рубин, множество специализированных магазинов. В то же время тихая непроездная улица города.Рядом улицы Коробкова, Спартака!Наше предложение позволит Вам жить в комфорте!ЗВОНИТЕ! Просмотры в любое время по договоренности!
262 м2
3 этажа
Кирпич
- Показать контакты
- Добавить в избранное
262 м2
3 этажа
Кирпич
23 000 000
87 652 /м2
