1-к квартира Показать на карте
Московский район
Тверь
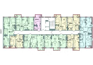
Продается квартира-студия 20 без отделки в ЖК ''Урбан Парк'' площадью 32.9 на 3 этаже от застройщика Консоль девелопмент.Жилой комплекс ''Урбан парк'' располагается в уникальной локации города Твери — на пересечении трех улиц: бульвара Цанова, улицы Коминтерна и Зеленого проезда.В основе архитектурной концепции жилого квартала ''Урбан парк'' лежит идеальное сочетание современного урбанистического стиля, оригинальных фасадов с яркими акцентами и функциональности зданий. Архитектура и продуманные планировочные решения, зоны отдыха, детали интерьера входных групп и места общего пользования создают абсолютно комфортную среду.Жилые дома образуют квартал, оборудованный детскими и спортивными площадками. Связующим звеном всех этапов застройки станет активный пешеходный променад.
32 м2
3 / 17 этаж
Кирпич - монолит
- Показать контакты
- Добавить в избранное
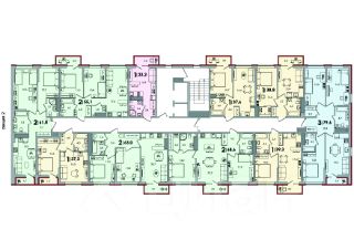
32 м2
3 / 17 этаж
Кирпич - монолит
4 421 760
134 400 /м2
Новостройка,
дом сдан
дом сдан
