Если цена в объявлении изменится, мы сразу сообщим вам об этом на электронную почту.
Нажимая «Подписаться», вы соглашаетесь с правилами.
продам 2-к, Бурашевское шоссе, 607 001 500 ₽
9 апр 2025
Дата публикации объявления
Обн. вчера
Дата обновления объявления
6
Количество просмотров (+ просмотры за сегодня)
Спецпредложение
Турбо x8
110 000 ₽/м²
Чистая продажа
Термин "Чистая продажа" означает, что в квартире никто не прописан или
есть куда выписаться и вывезти вещи. Это лучший вариант для покупателя.
Вероятность срыва сделки минимальна.
Квартира
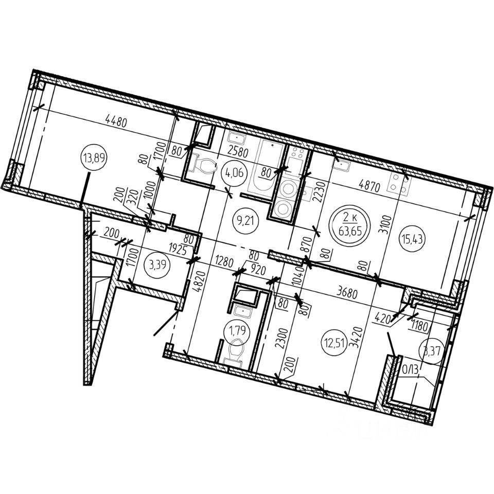
Общая площадь63,65 м2
Жилая площадь26,4 м2
Кухня15,4 м2
Тип собственностисвидетельство о праве собственности
Квартиры в ЖК ''Атмосфера'' — идеальное сочетание комфорта, стиля и инфраструктуры!
Продаются квартиры в новом кирпично-монолитном доме с индивидуальным газовым отоплением, увеличенными окнами и современными планировками. Уже в продаже!
Квартиры в ЖК ''Атмосфера'' — идеальное сочетание комфорта, стиля и инфраструктуры!
Продаются квартиры в новом кирпично-монолитном доме с индивидуальным газовым отоплением, увеличенными окнами и современными планировками. Уже в продаже!
О доме: — 15-этажный дом, 4 секции — Увеличенные окна — больше света и ощущение простора — Остекленные лоджии — Индивидуальное отопление — минимальные коммунальные платежи, возможность сделать теплый — Быстрые и бесшумные лифты — Холлы с дизайнерским ремонтом — Закрытая территория — безопасность и уединение — Коммерческие помещения на первом этаже: магазины, салоны красоты, уютные кафе прямо у дома
Двор и благоустройство: — Детские и спортивные площадки — Озеленённые аллеи для прогулок — Современное освещение и ландшафтный дизайн — Комфортная среда для жизни и отдыха
Инфраструктура: — Рядом всё необходимое: гипермаркеты, аптеки, поликлиники — 3 школы и 3 детских сада в пешей доступности — Удобный выезд и транспортная доступность — остановки рядом, маршруты в любой район города
Условия покупки: — Ипотека от ведущих банков — Использование материнского капитала — Рассрочка — первый взнос от 10% — TRADE-IN — меняем вашу старую квартиру на новую — Сделка через эскроу-счета — 100% юридическая защита — Работаем ежедневно, покажем в любое удобное для вас время
Отделка ''White Box'' подготовка под чистовой ремонт (8 500 ?/м²)
Звоните прямо сейчас, чтобы выбрать свою квартиру в ''Атмосфере'' — пока лучшие планировки ещё в наличии!