Если цена в объявлении изменится, мы сразу сообщим вам об этом на электронную почту.
Нажимая «Подписаться», вы соглашаетесь с правилами.
продам 2-к, Псковская, 306 650 000 ₽
8 мая 2025
Дата публикации объявления
Обн. 14 мая
Дата обновления объявления
3
Количество просмотров (+ просмотры за сегодня)
109 016 ₽/м²
Чистая продажа
Термин "Чистая продажа" означает, что в квартире никто не прописан или
есть куда выписаться и вывезти вещи. Это лучший вариант для покупателя.
Вероятность срыва сделки минимальна.
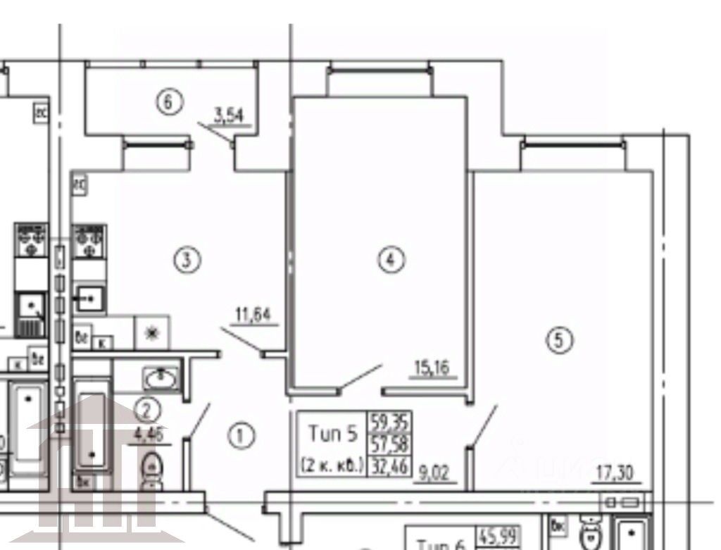
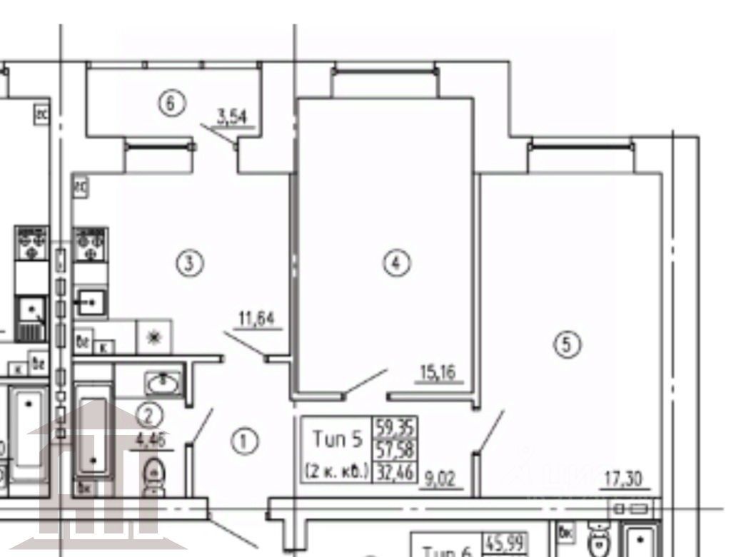
Продается стильная двухкомнатная квартира в уютном малоэтажном кирпичном доме повышенной комфортности в КП ''Южный Берег''!
Продается стильная двухкомнатная квартира в уютном малоэтажном кирпичном доме повышенной комфортности в КП ''Южный Берег''! Характеристики квартиры: - Общая площадь: 61 м - Просторные комнаты: 17,5 м и 15 м - Уютная кухня: 11,5 м - Совмещенный санузел и лоджия для вашего комфорта - Индивидуальное отопление (газовый двухконтурный котел)
Преимущества ЖК ''Южный Берег'': -Кирпичный дом с повышенными стандартами качества -Низкий уровень шума благодаря малому количеству соседей всего 20-24 квартиры -Экологичные материалы для вашего здоровья и уюта -Отличная шумоизоляция для спокойного проживания -Прекрасная транспортная доступность и много парковочных мест - ДОМ СДАН, и вы можете начать свой новый комфортный образ жизни прямо сейчас!
Условия покупки: - Рассрочка - Ипотека Не упустите шанс жить в идеальных условиях в черте города, где комфорт и безопасность на первом месте!