Если цена в объявлении изменится, мы сразу сообщим вам об этом на электронную почту.
Нажимая «Подписаться», вы соглашаетесь с правилами.
продам 3-к, Спартака, 29 250 000 ₽
29 окт
Дата публикации объявления
Обн. 27 апр
Дата обновления объявления
4
Количество просмотров (+ просмотры за сегодня)
104 994 ₽/м²
Чистая продажа
Термин "Чистая продажа" означает, что в квартире никто не прописан или
есть куда выписаться и вывезти вещи. Это лучший вариант для покупателя.
Вероятность срыва сделки минимальна.
3-комнaтнaя квapтиpа повышенной комфopтнocти нa 11/12-этaжнoгo монoлитнo-киpпичного дома в ЖК ГРАНД. Дом с ИНДИВИДУАЛЬНЫМ отоплением. Секция сдана!!! Ключи в день сделки. Продажа от Физлица!!!
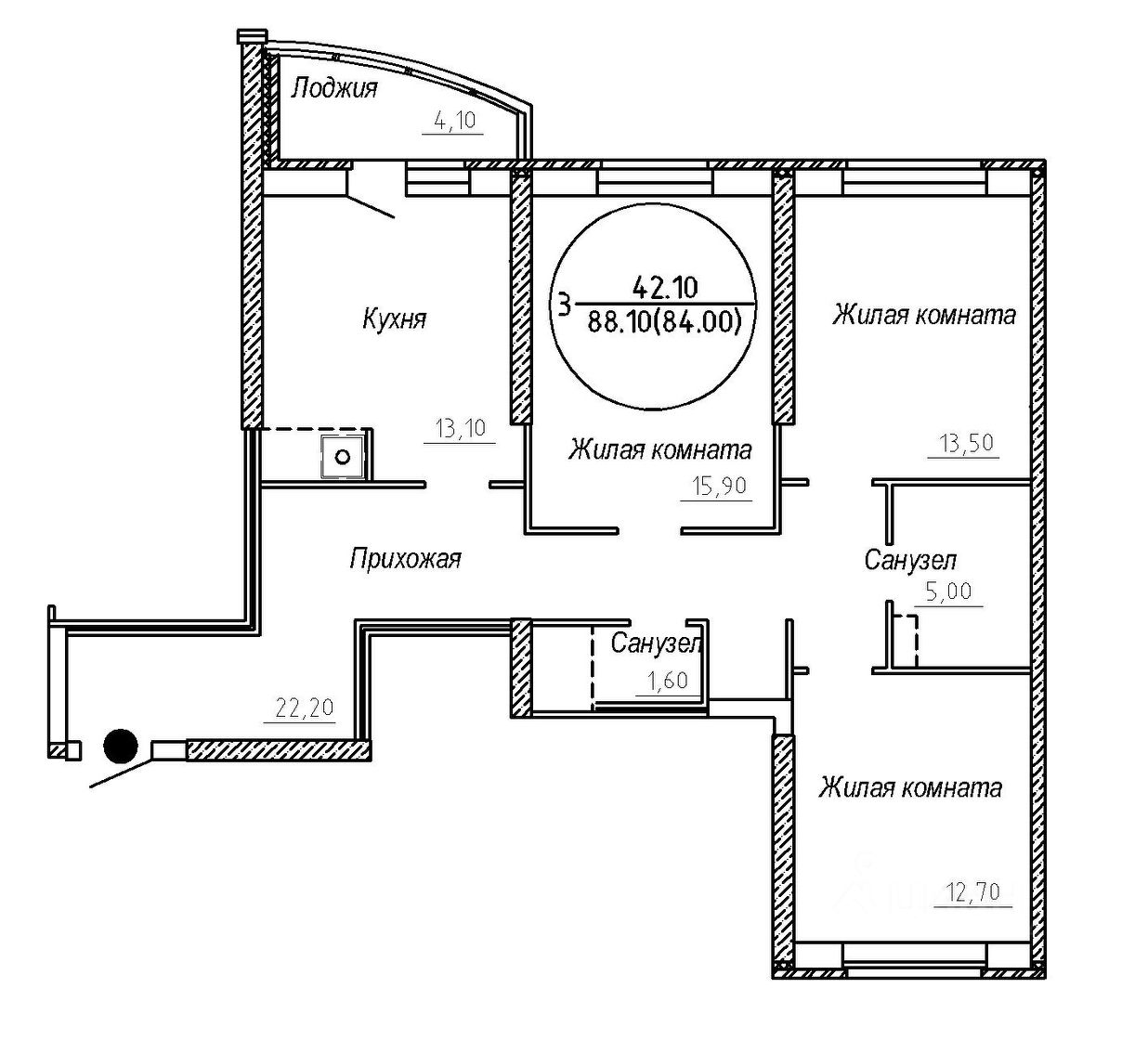
Общая площадь 88.1 кв.м.,
Kухня - 13.1 м2
Caнузел - 5/1.6 м2
Koмнаты - 13.5/12.7/15.9 м2
Kоридор - 22.2 м2
Лоджия - 4.1 м2
Высота потолков 2.8 метра.
Квартира под черновую отделку: выполнена разводка электричества, газовый котел, установлены биметаллические секционные радиаторы. Установлены счетчики на воду, электричество, окна ПВХ, металлическая дверь. 2 лифта (пассажирский и грузовой).
г. Тверь ул. Спартака д.2 ( 2025 года постройки)
3-комнaтнaя квapтиpа повышенной комфopтнocти нa 11/12-этaжнoгo монoлитнo-киpпичного дома в ЖК ГРАНД. Дом с ИНДИВИДУАЛЬНЫМ отоплением. Секция сдана!!! Ключи в день сделки. Продажа от Физлица!!!
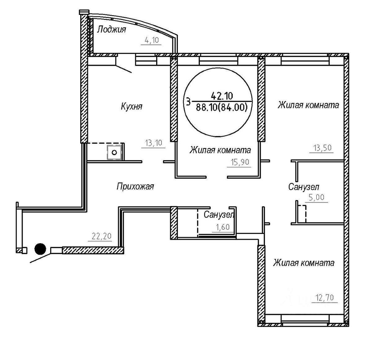
Общая площадь 88.1 кв.м.,
Kухня - 13.1 м2
Caнузел - 5/1.6 м2
Koмнаты - 13.5/12.7/15.9 м2
Kоридор - 22.2 м2
Лоджия - 4.1 м2
Высота потолков 2.8 метра.
Квартира под черновую отделку: выполнена разводка электричества, газовый котел, установлены биметаллические секционные радиаторы. Установлены счетчики на воду, электричество, окна ПВХ, металлическая дверь. 2 лифта (пассажирский и грузовой).
Жилой комплекс Гранд эргономично вписан в активно развивающуюся инфраструктуру центра города Твери. В непосредственной близости от дома находятся школы, детские сады, многоуровневый паркинг, продуктовые супермаркеты, медицинские центры различного проф иля, спортивный комплекс Румянцево, салоны красоты, Дворец творчества детей и молодежи, детский парк со множеством атракционов, ландшафтный парк Тьмака. Это позволяет получать образовательные, медицинские и бытовые услуги на территории своего района.