Если цена в объявлении изменится, мы сразу сообщим вам об этом на электронную почту.
Нажимая «Подписаться», вы соглашаетесь с правилами.
продам 1-к, Луначарского, 425 490 000 ₽
13 янв
Дата публикации объявления
Обн. 13 апр
Дата обновления объявления
10
Количество просмотров (+ просмотры за сегодня)
112 500 ₽/м²
Чистая продажа
Термин "Чистая продажа" означает, что в квартире никто не прописан или
есть куда выписаться и вывезти вещи. Это лучший вариант для покупателя.
Вероятность срыва сделки минимальна.
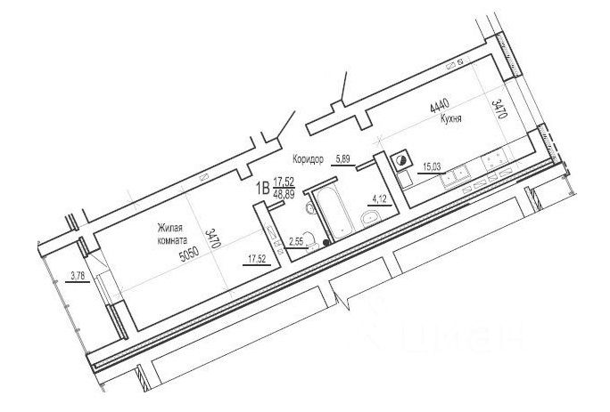
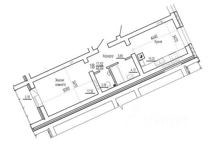
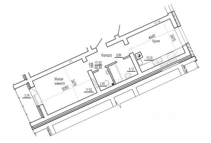
ул. Луначарского, дом 38 Однокомнатная квартира ''повышенной комфортности'' в сданном доме 2025 года постройки На четвертом этаже девятиэтажного кирпичного нового дома Общей площадью 45,4 кв.м (площадь квартиры с учетом лоджии 48,8 кв.м), просторная кухня 15,2 кв.м, комната 17,6 кв.м с выходом на лоджию. Индивидуальное газовое поквартирное отопление (свой газовый двухконтурный котел на отопление и горячую воду), счетчики на газ, воду, электричество. Низкие коммунальные платежи. Удобная планировка, окна кухни и комнаты ориентированы на разные стороны (восток-запад). Раздельный санузел. Квартира не угловая, без чистовой отделки. Один взрослый собственник, чистая продажа. Никто не зарегистрирован.
ул. Луначарского, дом 38 Однокомнатная квартира ''повышенной комфортности'' в сданном доме 2025 года постройки На четвертом этаже девятиэтажного кирпичного нового дома Общей площадью 45,4 кв.м (площадь квартиры с учетом лоджии 48,8 кв.м), просторная кухня 15,2 кв.м, комната 17,6 кв.м с выходом на лоджию. Индивидуальное газовое поквартирное отопление (свой газовый двухконтурный котел на отопление и горячую воду), счетчики на газ, воду, электричество. Низкие коммунальные платежи. Удобная планировка, окна кухни и комнаты ориентированы на разные стороны (восток-запад). Раздельный санузел. Квартира не угловая, без чистовой отделки. Один взрослый собственник, чистая продажа. Никто не зарегистрирован. Вся инфраструктура в шаговой доступности, рядом остановка транспорта, новые современные школа, поликлиника, детский сад, несколько супермаркетов, фитнес.