Если цена в объявлении изменится, мы сразу сообщим вам об этом на электронную почту.
Нажимая «Подписаться», вы соглашаетесь с правилами.
продам 3-к квартира9 470 165 ₽
23 янв
Дата публикации объявления
Обн. вчера
Дата обновления объявления
1
Количество просмотров (+ просмотры за сегодня)
Спецпредложение
Турбо x8
133 665 ₽/м²
Чистая продажа
Термин "Чистая продажа" означает, что в квартире никто не прописан или
есть куда выписаться и вывезти вещи. Это лучший вариант для покупателя.
Вероятность срыва сделки минимальна.
Квартира
Общая площадь70,85 м2
Жилая площадь40,2 м2
Кухня14,7 м2
Тип собственностидоговор долевого участия
Дом
Срок сдачи3 кв. 2027 г.
Этаж7 из 10
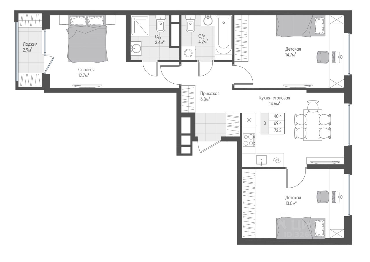
3-комн. квартира с готовой отделкой в ЖК ''ЭТОТ'', г. Тверь
Продается квартира с кухней-гостиной и тремя изолированными комнатами. Для родителей мастер-спальня с собственным санузлом и лоджией. Две детские расположены в противоположной части квартиры и имеют правильную геометрическую форму, что позволяет расставить всю необходимую мебель. Окна квартиры выходят во двор, а также на улицу Левитана.
Что входит в отделку ''Комфорт+''?
3-комн. квартира с готовой отделкой в ЖК ''ЭТОТ'', г. Тверь
Продается квартира с кухней-гостиной и тремя изолированными комнатами. Для родителей мастер-спальня с собственным санузлом и лоджией. Две детские расположены в противоположной части квартиры и имеют правильную геометрическую форму, что позволяет расставить всю необходимую мебель. Окна квартиры выходят во двор, а также на улицу Левитана.
Что входит в отделку ''Комфорт+''? - Надежная металлическая входная дверь, - Качественные шпонированные межкомнатные двери, - Износостойкий ламинат и современная керамическая плитка, - Светлые флизелиновые обои и натяжные потолки в каждой комнате, - Санузел ''под ключ'': плитка от пола до потолка, вся сантехника установлена, - Установлены приборы учета, интернет, домофон, - Лоджия/балкон с чистовой отделкой и остеклением. - Гарантия 12 месяцев от застройщика! Отделка включена в ДДУ.
Преимущества ЖК ''ЭТОТ'': - Нет шумного ремонта у соседей все квартиры сдаются с готовой отделкой! - Чистые, просторные подъезды с 2 входами (двор/парковка) и безбарьерной средой для удобства всех жителей, включая семьи с детьми и маломобильных граждан. Есть колясочные. - Двор без машин! Безопасные детские и спортивные площадки. - Прогулочные зоны с декоративной подсветкой и зелеными насаждениями для ежедневных прогулок и пробежек. - Зоны коворкинга и помещение для проведения досуга с семьей или соседями на территории жилого комплекса
Идеальное расположение: В шаговой доступности: новый детский сад и современная школа, спортивные и образовательные центры. Рядом крупный торговый кластер: ТЦ ''Торговый парк N1'', ''Лемана Про'', ''Петрович'', ''Глобус''.
Надежный застройщик: - ГК ''РКС Девелопмент'' 18 лет опыта, все объекты сдаются точно в срок! - Золотой знак ''Надежный застройщик России'' и высший балл по оценке Единого реестра застройщиков.
Не упустите свой шанс на комфортную жизнь!
*Стоимость предложения актуальна на момент публикации. Актуальные цены уточняйте в отделе продаж ЖК ''ЭТОТ''. Не является публичной офертой. Адрес отдела продаж: г.Тверь, ул. Оснабрюкская д.12.