Если цена в объявлении изменится, мы сразу сообщим вам об этом на электронную почту.
Нажимая «Подписаться», вы соглашаетесь с правилами.
продам 1-к квартира4 884 663 ₽
23 янв
Дата публикации объявления
Обн. вчера
Дата обновления объявления
Спецпредложение
Турбо x8
148 470 ₽/м²
Чистая продажа
Термин "Чистая продажа" означает, что в квартире никто не прописан или
есть куда выписаться и вывезти вещи. Это лучший вариант для покупателя.
Вероятность срыва сделки минимальна.
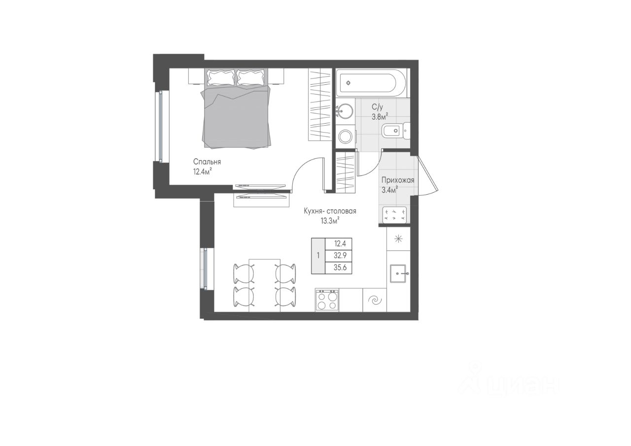
Квартира
Общая площадь32,9 м2
Жилая площадь12,4 м2
Кухня13,3 м2
Тип собственностидоговор долевого участия
Дом
Срок сдачи3 кв. 2027 г.
Этаж2 из 10
1-комнатная квартира с отделкой в ЖК ''ЭТОТ'' ключ к беззаботному комфорту в Твери!
Станьте обладателем уютной 1-комнатной квартиры. Окна выходят во двор. Совмещенный санузел имеет оптимальную площадь, где можно разместить стиральную машину и шкаф для бытовых мелочей.
Комфорт и качество ''под ключ'': Все квартиры в ЖК ''ЭТОТ'' сдаются с готовой отделкой класса ''Комфорт+''. Это не просто слова, это продуманное решение для вашего спокойствия: Надежность: Прочная металлическая входная дверь, шпонированные межкомнатные двери. Стиль и долговечность: Износостойкий ламинат и современная керамическая плитка, светлые флизелиновые обои и идеально ровные натяжные потолки в каждой комнате.
1-комнатная квартира с отделкой в ЖК ''ЭТОТ'' ключ к беззаботному комфорту в Твери!
Станьте обладателем уютной 1-комнатной квартиры. Окна выходят во двор. Совмещенный санузел имеет оптимальную площадь, где можно разместить стиральную машину и шкаф для бытовых мелочей.
Комфорт и качество ''под ключ'': Все квартиры в ЖК ''ЭТОТ'' сдаются с готовой отделкой класса ''Комфорт+''. Это не просто слова, это продуманное решение для вашего спокойствия: Надежность: Прочная металлическая входная дверь, шпонированные межкомнатные двери. Стиль и долговечность: Износостойкий ламинат и современная керамическая плитка, светлые флизелиновые обои и идеально ровные натяжные потолки в каждой комнате. Полностью готовый санузел: Керамическая плитка от пола до потолка, установленная сантехника, розетки для стиральной машины и фена. Практичность: Установлены приборы учета, проведены интернет и домофон. Гарантия: Отделка включена в ДДУ и фиксируется в договоре, а застройщик предоставляет 12-месячную гарантию!
ЖК ''ЭТОТ'' это не просто жилье, это ваш образ жизни: Безупречные общие пространства: Чистые, просторные и современные подъезды с бесшумными лифтами, безбарьерные входные группы (два входа со двора и парковки) для удобства каждого жителя, а также специальные колясочные. Безопасный и уютный двор: Концепт ''двор без машин'' обеспечивает спокойствие и безопасность. Здесь расположены современные детские и спортивные площадки, которые станут идеальным местом для активного семейного досуга. Гармония с природой: Прогулочные зоны с декоративной подсветкой и пышными зелеными насаждениями позволят наслаждаться неспешными прогулками или пробежками каждый день. Общественные пространства: зоны коворкинга и помещение для проведения досуга с семьей или соседями на территории жилого комплекса.
Все рядом для вашего удобства: Образование: В шаговой доступности новый детский сад и современная школа, а также множество спортивных и образовательных учреждений. Шопинг и развлечения: Крупный торговый кластер с ТЦ ''Торговый парк N1'', ''Лемана Про'', ''Петрович'' и ''Глобус'' находится совсем рядом, делая ваш шопинг максимально комфортным и разнообразным.
Надежность, проверенная временем: Ваша уверенность в завтрашнем дне подкреплена репутацией застройщика ГК ''РКС Девелопмент'' с 18-летним опытом безупречной работы. Все объекты сдаются точно в срок и без задержек. Мы не переписываем договоры и не переносим обещания. Наша репутация подтверждена Золотым знаком ''Надежный застройщик России'' и высшим баллом за своевременную сдачу объектов по оценке Единого реестра застройщиков.
Не упустите свой шанс начать новую, комфортную жизнь без забот!
*Стоимость предложения актуальна на момент публикации. Актуальные цены уточняйте в отделе продаж ЖК ''ЭТОТ''. Не является публичной офертой. Адрес отдела продаж: г. Тверь, ул. Оснабрюкская д.12.