Дом, Луговая, 13/1 Показать на карте
д. Черногубово (Калининский район)
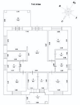
Готовый дом с отделкой и коммуникациями у соснового бора и реки - можно заехать сразу, без стройки и ожидания!Купить дом в Твери от застройщика. Возможен обмен на вашу недвижимость или покупка по программам льготной ипотекиО доме:- Общая площадь 135 м²- 3 спальни: 13,6 / 13,6 / 11 м²- Кухня-гостиная 39 м² с выходом на террасу- Крытая терраса 18,2 м²- 2 санузла: 4,9 и 2,98 м²- Гардеробная, котельнаяПродуманная планировка для жизни - шумная зона кухни-гостиной отделена от приватного блока со спальнямиКомфорт в деталях:- Тёплый пол по всей площади с регулировкой по помещениям- Панорамные энергосберегающие окна REHAU (3 стекла)- Высокие потолки и много естественного светаКоммуникации- Электричество 15 кВт (3 фазы)- Электрокотёл с Wi-Fi управлением- Скважина- Станция биоочистки- Вентиляция с канальными вентиляторами- Газ по границе участка (возможность подключения), в доме выполнена вся подготовкаДополнительно:- Уличное освещение- Розетка на улице- Вывод воды для поливаЭкономия:- Сельский тариф — 30% на электричество- Эффективный тёплый пол снижает затраты на отоплениеПлатежи ниже, чем ожидают при электрокотлеУчасток- 6,4 сотки, ИЖС- Ровный, правильной формы- Своя парковка Локация- 5 км до Твери- Автобус, ж/д станция- Рядом сосновый бор и река Тверца- Обжитой поселок - соседи живут- В шаговой доступности:школа, детский сад, магазины, аптеки, пункты выдачиЖизнь за городом без отрыва от инфраструктурыНадёжность:- 86 семей уже живут в наших домах в Черногубово- 5 лет гарантии на дом- 1 год на отделку и коммуникации- Пожизненная поддержка - мы всегда на связи и готовы помочь- Отзывы о компании - на сайте тд-домаУсловия покупки:- Продажа от застройщика - без комиссий- Семейная и IT-ипотека- Помощь в одобрении (работаем со всеми банками)- Обмен на вашу недвижимость- Материнский капитал- Полная стоимость в договореНапишите или позвоните - покажем дом в удобное времяВы сможете не только посмотреть дом, но и пообщаться с жителями, которые уже живут в наших домахРеальный опыт - лучший аргумент при выбореСпециальные условия для Риэлторов - с нами комфортно работатьДобавьте объявление в избранное, чтобы не пропустить лучшее предложение!
135 м2
1 этаж
- Показать контакты
- Добавить в избранное
135 м2
1 этаж
10 490 000
77 704 /м2
