2-к, Петербургское шоссе, 49 корп. 2 Показать на карте
Заволжский район
Тверь
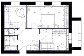
Двухкомнатная квартира 44 м² — отличная основа для вашего проекта под ремонт Ищете квартиру, где можно реализовать свой ремонтный проект и создать уютное пространство под себя? Это предложение именно для вас! Расположение и особенности Квартира площадью 44 м² находится на 1 этаже 5-этажного панельного дома. — Две комнаты 17,2 и 14 м², выходящие на разные стороны — можно выделить спальню и гостиную. — Кухня 5,5 м², раздельный санузел, прихожая 4,3 м². — Потолки 2,5 м, окна на восток и запад, что делает квартиру светлой в любое время суток. — В доме центральное отопление. Балкона нет — зато планировка позволяет рационально использовать каждый метр. Преимущества — Квартира под ремонт — идеальный вариант для тех, кто хочет воплотить собственные идеи дизайна. — Полная стоимость в договоре — прозрачная и безопасная сделка. — Тихий двор с детской площадкой и парковочными местами. — В шаговой доступности — детские сады, школы, магазины, аптеки, остановки общественного транспорта. — Удобное расположение и высокая транспортная доступность — легко добраться в любую часть города. Подходит для: — Инвесторов, ищущих ликвидный объект под сдачу или перепродажу. — Молодых семей — как доступное решение с перспективой улучшения. — Студентов и их родителей — удобный вариант недалеко от учебы. — Пенсионеров — низкий этаж, тишина, всё рядом. — Переезжающих из другого города — доступная цена и полное сопровождение сделки. Позвоните или напишите прямо сейчас! Работаем без выходных — договоримся о просмотре в удобное для вас время.
44 м2
1 / 5 этаж
- Показать контакты
- Добавить в избранное
44 м2
1 / 5 этаж
2 900 000
65 909 /м2
