1-к, Петербургское шоссе, 50 Показать на карте
Заволжский район
Тверь
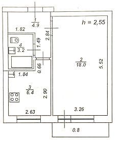
Уютная студия рядом с Волгой — готова к вашему заселению! Идеальный вариант для тех, кто ценит комфорт, удобство и хорошее расположение. Светлая студия площадью 22,7 м² на 5-м этаже 9-этажного панельного дома — уютное пространство, где всё продумано до мелочей. О квартире: — Общая площадь — 22,7 м², жилая — 18,1 м², кухня — 2,1 м² — Уютная планировка, не угловая — Высота потолков — 2,5 м — Чистый косметический ремонт, установлена качественная сантехника — Остаётся встроенная кухня, бытовая техника и мебель — можно заезжать сразу после сделки — Центральное отопление, окна на северо-восток — утром солнечно, днём прохладно — Хороший вид из окна, лифт, домофон на этаже Район и инфраструктура: Дом расположен в месте с отличной транспортной доступностью — остановка Вагонный завод прямо напротив дома. Рядом есть всё необходимое для жизни: детские сады, школы, несколько супермаркетов, поликлиника и городская больница. Для прогулок и отдыха — набережная Волги в шаговой доступности. Преимущества: — Полная стоимость в договоре (подходит под ипотеку и маткапитал) — Все удобства, комфортное пространство для жизни — Приятный вид, уютный дом, доброжелательные соседи Отлично подойдёт: Молодой семье, студенту, удалённому специалисту, пенсионеру, инвестору или тем, кто ищет компактное и уютное жильё для жизни или аренды. Звоните прямо сейчас , чтобы записаться на просмотр и убедиться, что эта квартира — именно то, что вы искали!
22 м2
5 / 9 этаж
Панель
- Показать контакты
- Добавить в избранное
22 м2
5 / 9 этаж
Панель
2 150 000
94 714 /м2
